Run don't walk - this property will not last long on the market. Immaculate, modern low set duplex situated in the best spot in a small complex of only five in total. The location is outstanding and in a mere 2 minutes you can be on the Freeway heading towards Brisbane City/Sunshine Coast or South to the Gold Coast.
FEATURES INCLUDE:
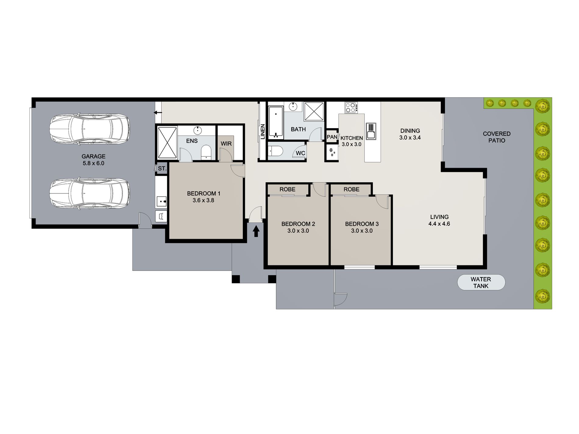
• Modern kitchen with tiled flooring, stone benchtop and brekky bar, electric stovetop and oven, dishwasher, good sized food pantry, Plenty of soft closing cabinets ( upper and lower )
• Open plan dining and lounge with tiled flooring, reverse cycle air conditioning and fans with doors leading to outdoor Patio space
• Family bathroom has tiled flooring, separate bath, separate shower and single vanity unit with storage cabinetry
• Separate toilet
Main bedroom has carpet flooring, walk in robe, en-suite is tiled with shower and single vanity unit with storage cabinetry
• Bedrooms 2 and 3 have carpet flooring and double built in mirrored robes
• Laundry located at the rear of double garage has built in cabinetry and benchspace
ADDITIONAL FEATURES INCLUDE:
• Built 2013
• High ceilings
• Double remote garage
• 156m2 building area, 166m2 land area
• Private, quiet and secure position
• Low maintenance brick and tile construction
• Fully fenced rear garden
• Patio
• Heat pump HWS ( recently serviced )
• Rainwater tank with new pump
• Tinted windows
• Security screens to all doors and window
• Air cons only 3 years old
Incredible location for commuting to Brisbane City or the Gold Coast, walking distance to the Logan River Parklands which has council free public fishing, great walking paths and a fenced dog park for those with a furry friend. So many lush green parks are nearby to enjoy with the family like the Doug Larsen Park, Beenleigh skate park, Beenleigh multi sports association, Chris Green Park and much, much more. A small group of shops are within easy walking distance and you're only minutes from the Logan Hyperdome with every convenience at your fingertips. Don't miss this incredible opportunity to buy in such a fantastic location. Call Stephanie on 0438 338 720 to view or come along to one of our advertised open home inspections.,



























